Добро пожаловать на http://vipplan.ru

Випплан Можайск - это тысячи проектов домов в нашем каталоге!

Вы всегда сможете найти для себя проект дома вашей мечты! Даже если этого не случилось, мы готовы в любую минуту предложить проект индивидуального дома.

Забыли пароль?
Вы еще не регистрировались?

Перейдите по ссылке ниже на страницу регистрации.

Регистрация...

Внимание!!!

В проектную документацию могут быть внесены изменения любой сложности, в соответствии в Вашими пожеланиями!

Полезные статьи

Советы по проектированию дома

Представляем Вашему вниманию несколько советов по проектированию дома. Все что касается выбора участка, размещению дома на участке, подбора проекта на строительство дома, советы по выбору технологии строительства и материалов и т.д....

Монолитный коттедж с несъемной опалубкой

Перед тем, как вы задумаетесь о строительстве своего коттеджа, необходимо выбрать, сами вы будете руководить строительством, нанимать разных рабочих, или будете обращаться в строительную фирму, и заключать с ними договор. Но даже к этому вопросу нужно подходить правильно, обдумав все плюсы и минусы выбора....

Проекты домов и коттеджей > Каталог проектов домов > Проект комфортного коттеджа с мансардой Vg1218

Проект комфортного коттеджа с мансардой Vg1218

Проект комфортного коттеджа с мансардой
Зарегистрируйтесь

Проект № Vg1218


Техническое описание
Общая площадь: 149.6 м2
Жилая площадь: 100.85 м2
Высота здания: 9.41 м
Размеры дома: 11.54м×10.04м
Кол-во комнат: 5
Цокольный этаж: нет
Гараж: нет
Мансарда: есть

Kонструкция
Фундамент: Ленточный
Перекрытия: Монолитные перекрытия
Материал стен: Газобетон

Архитектурный раздел
Конструктивный раздел
АР+КР - 52 000 (Со скидкой 20%)
Срок разработки проекта — 7 рабочих дней. Проект индивидуального одноэтажного жилого дома с мансардой с размерами здания 11,54 x 10,04 м. Наружная отделка здания - фасадная штукатурка 2х цветов. Цоколь - отделка камнем. Фундамент - ленточный, монолитный ж/б. Наружные стены: газобетонные блоки, отделка фасада штукатуркой 2х цветов. Внутренние стены выполняются из газобетонных блоков. Перегородки выполняются из кирпича. Перемычки - монолитные и сварные из профиля проката. Пол первого этажа - пол по грунту. Перекрытие над первым этажом - ж/б монолитное. Потолок мансардного этажа - по затяжкам стропильной системы. Крыша четырехскатная. Материал - металлочерепица. Окна - металлопластиковые, выполненные по индивидуальному заказу. Лестница -по индивидуальному заказу.
Генплан застройки участка / Паспорт проекта 7000 руб / 10000 руб
Инженерный раздел (полный) 75000 руб
Смета на строительство 37500 руб
Теплотехнический расчет материалов стен Бесплатно
Стоимость проекта со незначительнми изменениями 61250 руб
Стоимость проекта со средними изменениями* 72500 руб
Стоимость проекта со значительными изменениями** 75500 руб

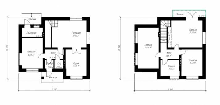
План первого этажа


Тамбур — 2,06 м2
Холл — 4,75 м2
С/у — 2,03 м2
Гостиная — 22,51 м2
Кухня — 14,56 м2
Кабинет — 16,93 м2
Бойлерная — 5,04 м2
Проект комфортного коттеджа с мансардой Проект комфортного коттеджа с мансардой Проект комфортного коттеджа с мансардой Проект комфортного коттеджа с мансардой

Модификации проектов

Внесение изменений и привязка к участку строительства

В любой из проектов от компании VIPplan - Можайск по вашему желанию могут быть внесены изменения в материалы стен, материалы наружной отделки дома, а также будет произведена адаптация проекта под конкретный регион строительства (с учетом грунтов региона, геологических особенностей вашего участка и местных климатических условий) - БЕСПЛАТНО !!! (кроме проектов со скидкой и проектов наших партнеров).

Любой из проектов, размещенных на сайте mojaysk.vipplan.ru мы можем выполнить из требуемых вам строительных материалов: ячеистый бетон (газобетон, пеноблок), керамоблок, кирпич, шлакоблок, бетонный блок, дерево (брус, клееный брус), каркасная технология (деревянный каркас, металлокаркас (ЛСТК)).

Фасад дома и его наружную отделку так же возможно выполнить с применением различных облицовочных материалов: структурной штукатурки, (с утеплителем и без), сайдингом (пластиковый или металлосайдинг), фиброплитами, кирпича.

 
6 Избранные
проекты

Доставка проектов по России: Москва (Московская область), Санкт-Петербург (Ленинградская область), Краснодар, Ростов-на-Дону, Ставрополь, Сочи, Волгоград, Новосибирск, Белгород, Брянск, Воронеж, Саратов, Хабаровск, Астрахань, Нальчик, Владикавказ, Екатеринбург, Тюмень, Самара, Нижний Новгород, Казань, Пермь, Уфа, Челябинск, Красноярск, Ханты-Мансийск, Иркутск, Курган, Оренбург, Омск, Томск, Барнаул, Новокузнецк, Кемерово, Абакан, Чита, Якутск, Южно-Сахалинск, Петропавловск-Камчатский и страны ближнего зарубежья: Белоруссия, Украина, Казахстан