Добро пожаловать на http://vipplan.ru

Випплан Можайск - это тысячи проектов домов в нашем каталоге!

Вы всегда сможете найти для себя проект дома вашей мечты! Даже если этого не случилось, мы готовы в любую минуту предложить проект индивидуального дома.

Забыли пароль?
Вы еще не регистрировались?

Перейдите по ссылке ниже на страницу регистрации.

Регистрация...

Внимание!!!

В проектную документацию могут быть внесены изменения любой сложности, в соответствии в Вашими пожеланиями!

Полезные статьи

Приобретение земельного участка в собственность

Вы собираетесь приобрести участок. Прежде чем принять окончательное решение, тщательно изучите местность, на которой находится ваш участок, внимательно осмотрите местность. Узнайте о близости реки или других водоемах, всмотритесь в рельеф. Каждый из факторов может иметь неоспоримые плюсы, а также минусы, способные повлиять на окончательное решение. Стоит принять во внимание, что земельные участки, которые продаются «напрямую», дешевле тех, которые реализуют, пользуясь услугами посредников....

Где копать колодец?

Водоснабжение за городом - Можайск всегда было проблематичным. При отсутствии центрального водоснабжения остается только один выход – выкопать колодец. Водоносный пласт есть не везде. Как же определить, где копать колодец?...

Проекты домов и коттеджей > Каталог проектов домов > Проект двухэтажного дома Vg1141

Проект двухэтажного дома Vg1141

Проект двухэтажного дома
Зарегистрируйтесь

Проект № Vg1141


Техническое описание
Общая площадь: 247.68 м2
Жилая площадь: 119.35 м2
Высота здания: 9.57 м
Размеры дома: 18.74м×12.44м
Кол-во комнат: 6
Цокольный этаж: нет
Гараж: нет
Мансарда: нет

Kонструкция
Фундамент: Ленточный
Перекрытия: Монолитные перекрытия
Материал стен: Газобетон

Архитектурный раздел
Конструктивный раздел
АР+КР - 64 000 (Со скидкой 20%)
Проект индивидуального двухэтажного жилого дома, размерами 18,74 х 12,44 м. Наружная отделка здания – фасадная штукатурка, деревянные панели. Цоколь – клинкерная плитка. Кровля – металлочерепица. Фундамент – ленточный монолитный (под несущими стенами). Наружные стены: газобетонные блоки, экструдированный пенополистирол, штукатурка, деревянные панели. Внутренние стены и перегородки – газобетонные блоки. Отделка вентканалов и дымоходов – штукатурка. Пол первого этажа – пол по грунту. Межэтажное перекрытие — монолитная ж/б плита. Чердачное перекрытие - по деревянным балкам с использованием теплошумоизоляционных материалов типа «URSA» в межбалочном пространстве. Крыша многоскатная. Окна металлопластиковые, выполненные по индивидуальному заказу.
Генплан застройки участка / Паспорт проекта 7000 руб / 10000 руб
Инженерный раздел (полный) 124000 руб
Смета на строительство 62000 руб
Теплотехнический расчет материалов стен Бесплатно
Стоимость проекта со незначительнми изменениями 73800 руб
Стоимость проекта со средними изменениями* 92400 руб
Стоимость проекта со значительными изменениями** 97400 руб

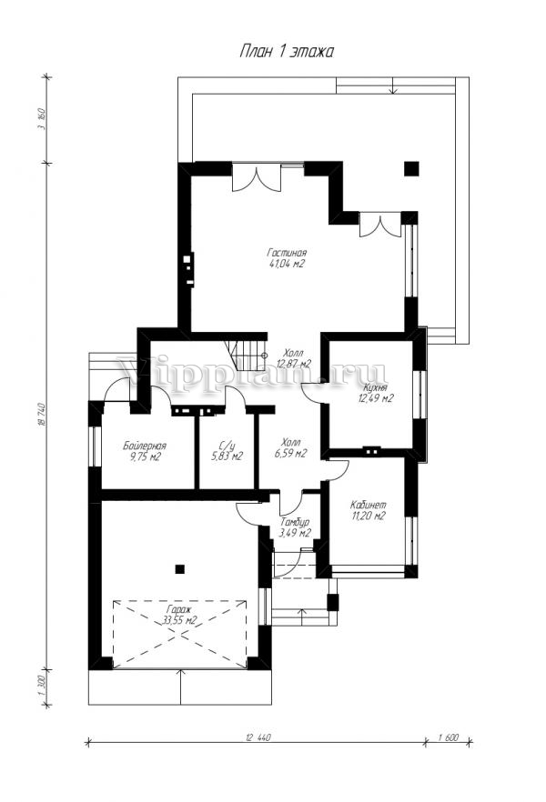
План первого этажа


Тамбур — 3,49 м2
Холл — 6,59 м2
Холл — 12,87 м2
Гостиная — 41,04 м2
Кухня — 12,49 м2
Кабинет — 11,20 м2
С/у — 5,83 м2
Бойлерная — 9,75 м2
Гараж — 33,55 м2

Проект двухэтажного дома

Проект двухэтажного дома

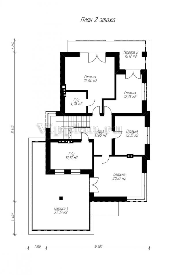
План второго этажа


Холл — 10,80 м2
Спальня — 22,04 м2
С/у — 4,78 м2
Спальня — 12,35 м2
Спальня — 12,35 м2
Спальня — 20,37 м2
С/у — 12,12 м2
Терраса — 37,39 м2
Терраса — 16,12 м2
Проект двухэтажного дома Проект двухэтажного дома Проект двухэтажного дома Проект двухэтажного дома

Модификации проектов

Внесение изменений и привязка к участку строительства

В любой из проектов от компании VIPplan - Можайск по вашему желанию могут быть внесены изменения в материалы стен, материалы наружной отделки дома, а также будет произведена адаптация проекта под конкретный регион строительства (с учетом грунтов региона, геологических особенностей вашего участка и местных климатических условий) - БЕСПЛАТНО !!! (кроме проектов со скидкой и проектов наших партнеров).

Любой из проектов, размещенных на сайте mojaysk.vipplan.ru мы можем выполнить из требуемых вам строительных материалов: ячеистый бетон (газобетон, пеноблок), керамоблок, кирпич, шлакоблок, бетонный блок, дерево (брус, клееный брус), каркасная технология (деревянный каркас, металлокаркас (ЛСТК)).

Фасад дома и его наружную отделку так же возможно выполнить с применением различных облицовочных материалов: структурной штукатурки, (с утеплителем и без), сайдингом (пластиковый или металлосайдинг), фиброплитами, кирпича.

 
6 Избранные
проекты

Доставка проектов по России: Москва (Московская область), Санкт-Петербург (Ленинградская область), Краснодар, Ростов-на-Дону, Ставрополь, Сочи, Волгоград, Новосибирск, Белгород, Брянск, Воронеж, Саратов, Хабаровск, Астрахань, Нальчик, Владикавказ, Екатеринбург, Тюмень, Самара, Нижний Новгород, Казань, Пермь, Уфа, Челябинск, Красноярск, Ханты-Мансийск, Иркутск, Курган, Оренбург, Омск, Томск, Барнаул, Новокузнецк, Кемерово, Абакан, Чита, Якутск, Южно-Сахалинск, Петропавловск-Камчатский и страны ближнего зарубежья: Белоруссия, Украина, Казахстан